【玻璃幕墻中上下立柱是怎樣連接的?】玻璃幕墻中上下立柱是怎樣連接的?
已有7個回答
我來回答一下
在上下兩個立柱之間采用連接件,分別穿進上下桿件的端部,然后再用螺栓擰固。
用插芯同時穿入上下兩個立柱,上下各450mm.然后用螺栓固定
上下各450MM???????????????
插芯的長度大概是420 插入上下立柱各200 2立柱之間的間隔15 左右
一般為插芯,兩邊不少于200mm,預留不少于15mm伸縮縫。
幕墻的錨固通常采用立柱,上端和建筑體結構連接,立柱的上端裝有匹配的連接插芯,下端是活動的,通過和下層立柱的插芯連接組成通長的立柱整體。兩立柱間留有變形縫。這種錨固連接方式為吊掛式。它的特點是每個立柱單元不會因溫度,自重等因素等發生沉降變化時影響相鄰的立柱單元。
一、上:鋼插芯L≥200,立柱圓孔,2支M12螺栓穿連,鋼插芯焊到埋板上,鋁材開口距離埋板15~20mm;
二、中間分兩種情況:
兩立柱對接口(伸縮縫不小于15mm):鋁插芯L≥250,立柱圓孔,2支M12螺栓穿連到鋼連接挑件(上部型材下口穿入插芯不固定);
整根立柱跨層間使用,按規范需與層間有固定點。立柱開長孔,不用插芯,鋼連接挑件穿2支M12螺栓,不承重,迎正面風壓和負壓;
三、下部兩種做法:
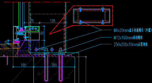
鋁插芯+鋼板機制沉頭連接,鋼板焊到埋件上,立柱和插芯不固定,溫差伸縮導向關系,螺絲不外露;如圖:

鋼插芯,與“上”插芯類似,因與立柱墻體配合間隙大,為防止余量晃動,立柱開長孔,盤頭ST5.5機制螺絲攻絲到插芯上;如圖

| 共7條 頁次:[1/1] 首頁 1 尾頁 |


